Выдвижная одноуровневая корзина-сушка для модуля 800
Тест
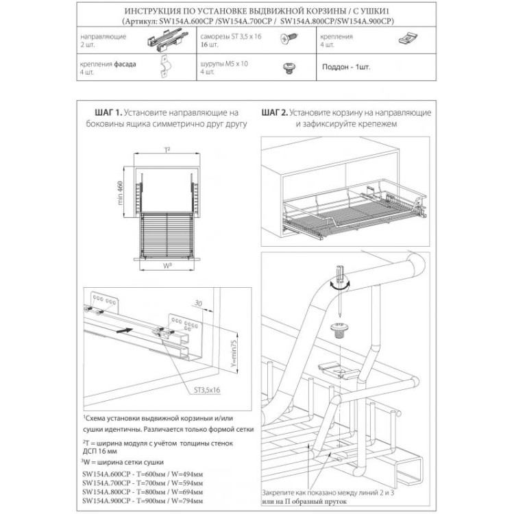
Выкатные корзины-сушки Aurora (SW154A) - сочетают в себе функциональное решение для нижних кухонных модулей и лучшую цену. Корзина-сушка выполнена в виде 3-х зональной сетки из хромированного прутка, что что дает возможность разместить и надежно зафиксировать внутри посуду любой формы. В комплекте поставляется поддон нейтрального цвета (полупрозрачный), который защитит от капель и влаги расположенное ниже наполнение или дно модуля. Конструкция корзины позволяет легко снять/установить поддон при необходимости (например при уборке). Корзина-сушка Aurora комплектуется направляющими скрытого монтажа полного выдвижения с системой EasyMotion (Soft Close) и синхронизатором. Такое сочетание предоставляет следующие преимущества: \nсвободный доступ ко всему содержимому; \nбесшумное открывание и закрывание корзины; \nплавный ход (обеспечит сохранность посуды); \nнагрузка до 30 кг. Корзина-сушка Aurora может быть установлена как с распашным так и с выдвижным фасадом - в комплект уже включены не регулируемые крепления фасада.
Артикул:
SW154A.800CP
Материал:
Сталь
Производитель:
ЮВА
Цвет:
Хром
Бренд:
JET
Нагрузка:
30 кг
Размер:
(Ш х Г х В)694 х 440 х 210 мм
Тип выдвижения:
Полное с доводчиком
Ширина модуля:
800 мм



